Wohnpark Wilhelmshöhe
Aktuell Ausstattung Service-Wohnen Wohnpark Ansichten 1a-Lage Partner Kontakt Impressum Datenschutz
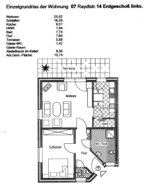
Beispiel 7

Grundriss der Eigentumswohnung Nr. 7 in der Raydstr. 14




Lageplan <

Beispiel 8 >

Startseite